Ersatzneubau der Kindertagesstätte mit insgesamt 8 Gruppenräumen

    Adresse:

    Tannenweg 1

    82319 Starnberg

    Auftraggeber:

    Katholische Kirchenstiftung St. Maria Starnberg

    Beauftragte Leistung:

    Objektplanung Gebäude und Innenräume LPH 1-9 HOAI

    Projektzeiten:

    Planung: ab 02/2024

    Baubeginn: 02/2026

    Projektgröße:

    BGF: 2.695 m2

    BRI: 9.388 m3

    Projektbeteiligte:

    Landschaftsarchitekt:

    TOPgrün GmbH, Dachau

     

    Tragwerksplanung:

    GEOPLAN GmbH, Osterhofen

     

    HLS-Planung:

    Konrad Huber GmbH, München

     

    Elektro-Planung:

    b.i.g. bechtold Ingenieurgesellschaft MBH, Ismaning

     

    Bauphysik:

    Akustik+Bauphysik Süd, Pöcking

     

    Brandschutzplanung:

    Haug & Partner - Beratende Ingenieure mbB, Wertach

    Ausgangslage

    Am Tannenweg in Starnberg entsteht ein moderner Ersatzneubau für die Kindertagesstätte St. Nikolaus mit Platz für drei Krippen-, drei Kindergarten- und zwei Hortgruppen. Das Gebäude ersetzt die bestehende Einrichtung aus dem Jahr 1974 sowie das Containerprovisorium auf demselben Grundstück. Während der Bauphase bleibt der Betrieb der Kita erhalten, die Container für den Hort werden übergangsweise ausgelagert. Nach der Fertigstellung, erfolgt der Rückbau des Altgebäudes und macht Platz für eine mögliche Wohnbebauung mit bis zu fünf geförderten Wohnungen – ideal für Mitarbeitende der Kita. 

     

    Städtebauliche Einbindung

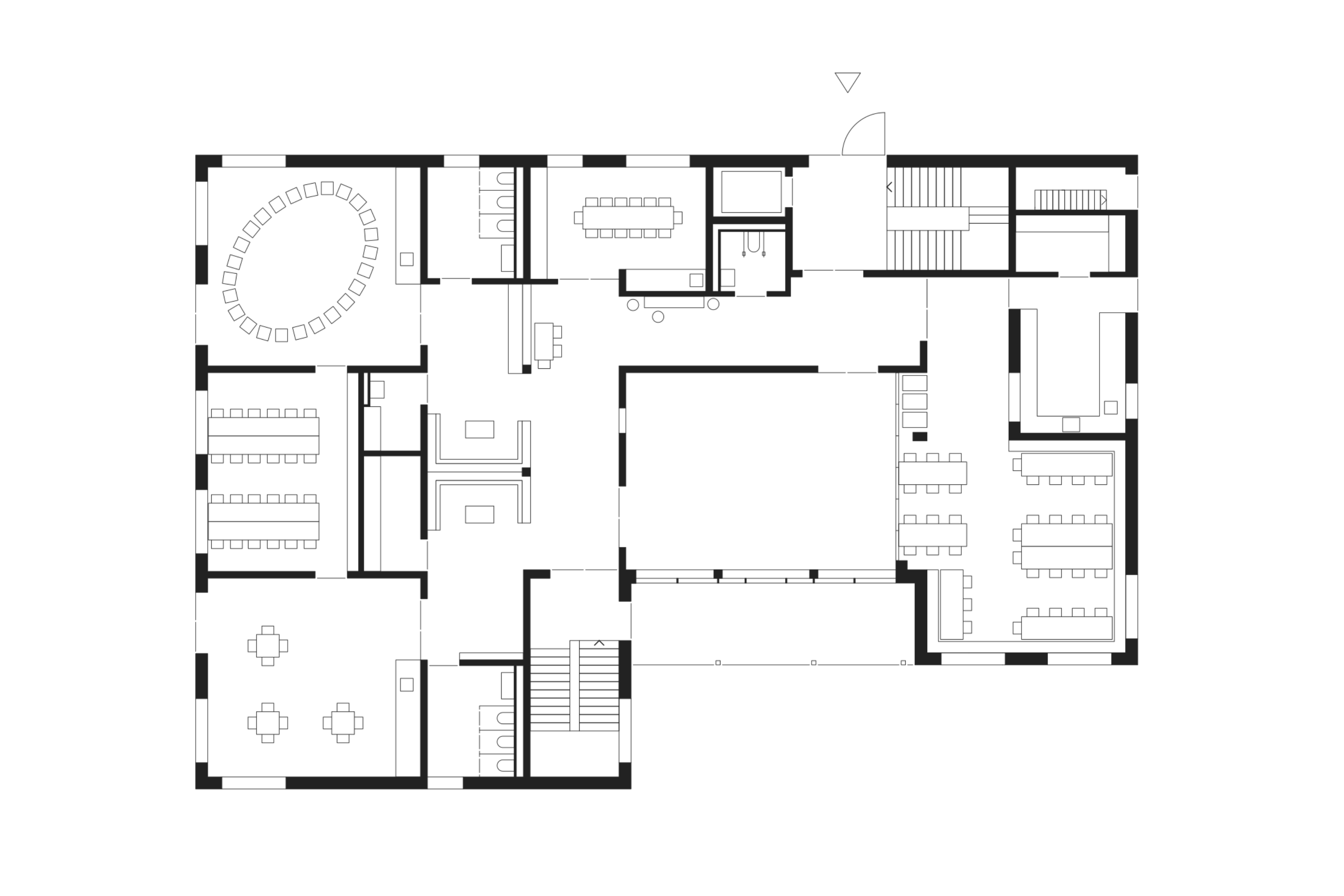
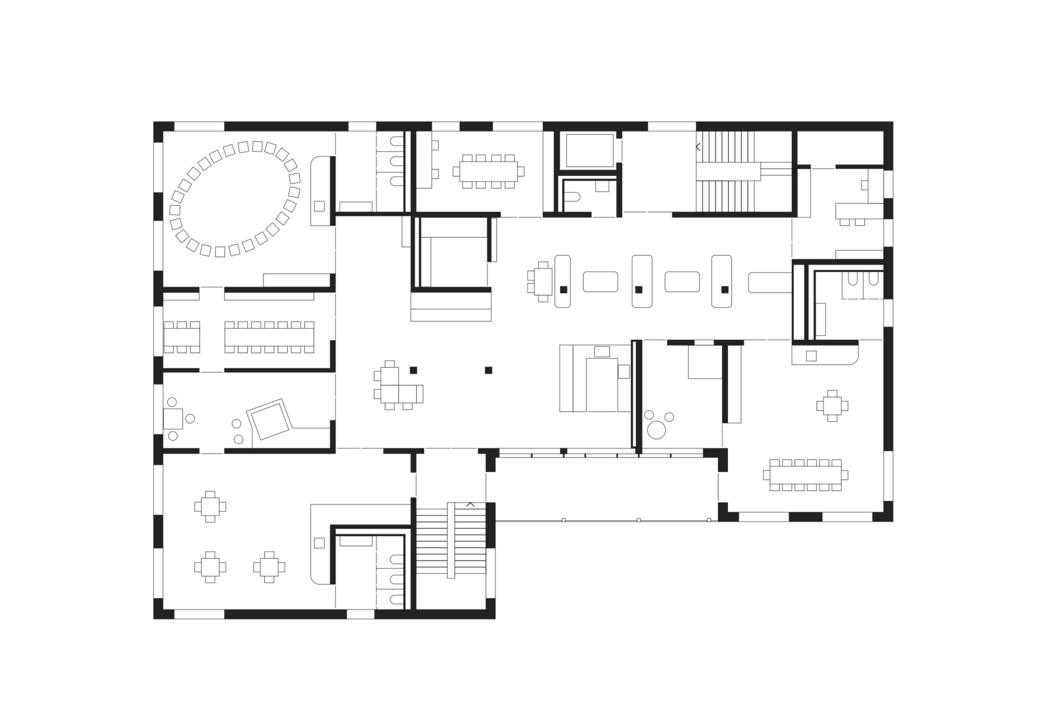
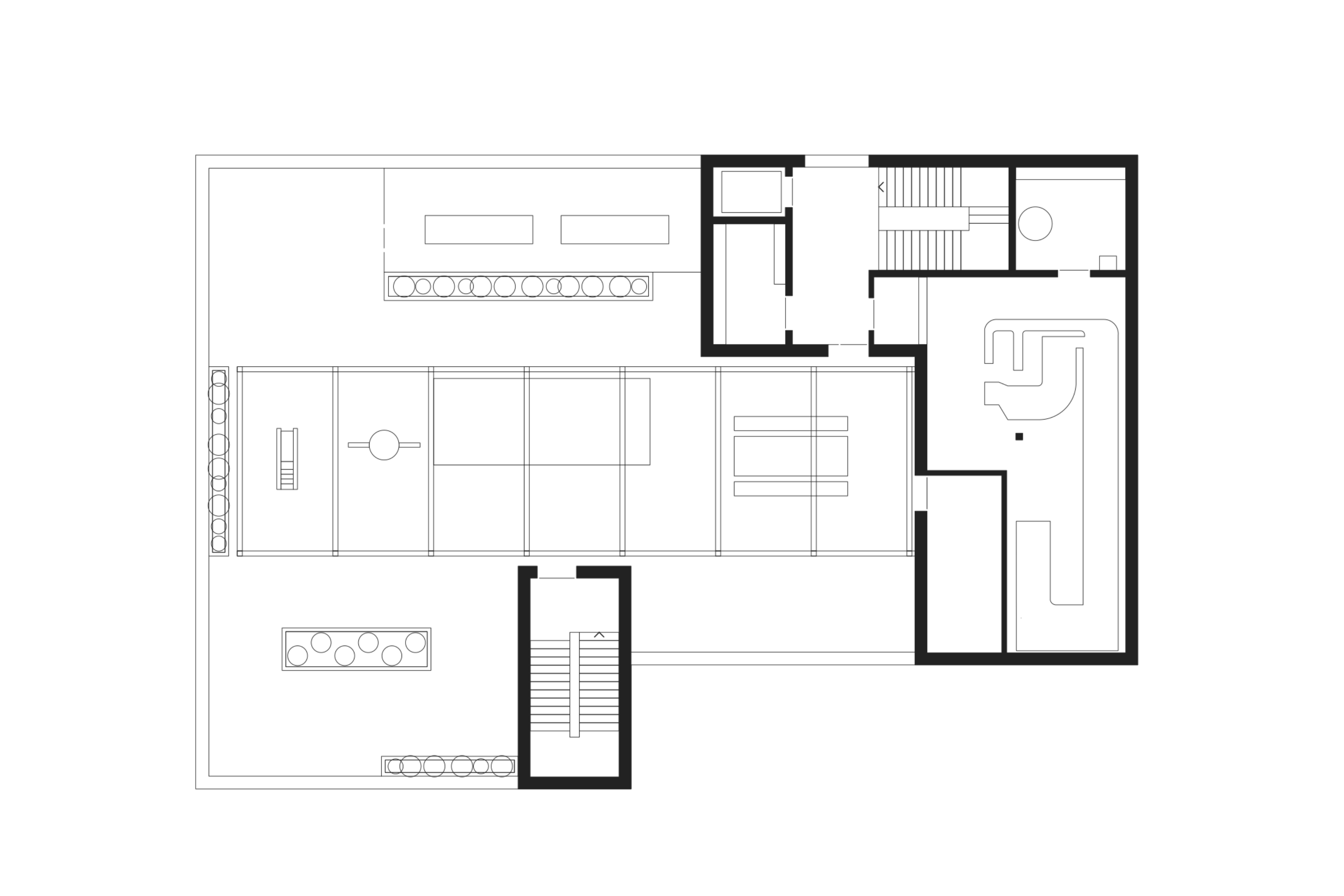
    Ein übergeordnetes Ziel ist die qualitätsvolle städtebauliche Einbindung in das örtliche Umfeld, dass im Norden und Osten von ein- bis zweigeschossiger Wohnbebauung und im Süden von vier bis sechsgeschossigen Mehrfamilienhäusern geprägt ist. Der viergeschossige, teils abgestaffelte Neubau beherbergt im Erdgeschoss zwei Hortgruppen sowie Allgemeinflächen, im 1. Obergeschoss den dreigruppigen Kindergartenbereich und fast deckungsgleich liegt im 2. Obergeschoss der dreigruppige Krippenbereich mit zugehörigem Dachgarten. Für die Krippe ist im obersten Geschoss ein eigener Dachgarten als geschützter Freibereich vorgesehen.

     

    In Verbindung mit den angrenzenden Freiflächen und dem öffentlichen Quartiersplatz als „Shared Space“ werden unter Erhalt des Baumbestands hochwertige Außenanlagen geschaffen, die Kindern unterschiedlichen Alters Bewegungs- und Aufenthaltsqualität bieten. Die Kita wird zukünftig über den Haupteingang am Tannenweg erschlossen, während sich der öffentliche Quartiersplatz mit Hol- und Bringzone entlang der Jahnstraße erstreckt. 

     

    Pädagogisch durchdacht und zukunftsorientiert

    In Zusammenarbeit mit dem Betreiber- und Kindergartenteam wurde ein teiloffenes Betreuungskonzept entwickelt. Für die Umsetzung sind vor allem gegenseitige Sichtbarkeit und die Ausbildung von gruppenübergreifenden Themenräumen maßgeblich. Ein besonderes Merkmal ist das Konzept des „Sockenhauses“, das mit schuhfreien Spielgeschossen und eigener Sockentreppe für mehr Hygiene und Bewegungsfreiheit sorgt und dadurch die unterschiedlichen Altersgruppen über die einzelnen Geschosse hinweg miteinander verbindet. 

     

    Gebäudekonzept

    Geplant ist ein viergeschossiger Massivbau mit gleichmäßigen Konstruktionsachsen, dessen Struktur für einen klar gegliederten und flexibel nutzbaren Grundriss sorgen. Die Lasten werden über die Ziegelaußenwände, Stahlbetonstützen und -decken abgetragen, während die Aussteifung über die Treppenhauskerne und Wandscheiben erfolgt. Die Energieversorgung erfolgt über eine Luft-Wasser-Wärmepumpe und eine Photovoltaikanlage auf dem Dach. Für die Lüftung ist ein hybrides Konzept angedacht, dass auf überwiegend natürliche Lüftung über die großflächigen Fensterflächen mit eigenen Lüftungsklappen setzt und nur in Teilbereichen durch eine mechanische Lüftung unterstützt wird.

    Bild zum Projekt Kindertagesstätte St. Nikolaus Starnberg
    Bild zum Projekt Kindertagesstätte St. Nikolaus Starnberg
    Bild zum Projekt Kindertagesstätte St. Nikolaus Starnberg
    Bild zum Projekt Kindertagesstätte St. Nikolaus Starnberg
    Bild zum Projekt Kindertagesstätte St. Nikolaus Starnberg
    Bild zum Projekt Kindertagesstätte St. Nikolaus Starnberg
    Bild zum Projekt Kindertagesstätte St. Nikolaus Starnberg